Dunmoochin has two working studios available for artists to rent separately to their residences, as well as a gallery space for artists to exhibit and a printmaking studio available to all residents.
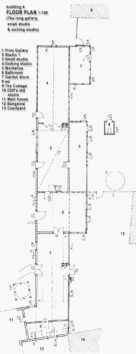
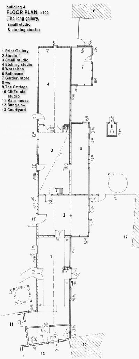
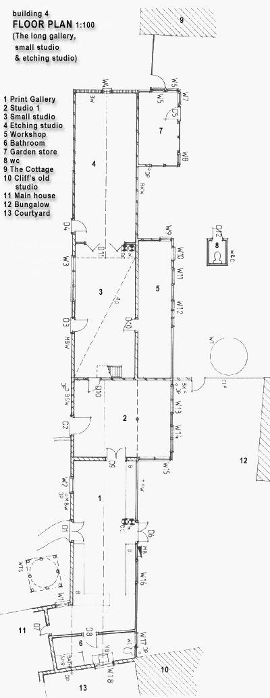
The Printmaking Studio
Features
- Hand-Operated Etching Press
- Acid Trays
- Benches
- Storage
- Bathroom
- Skylights
The Printmaking Studio is available for casual use by artists in residence. Users are required to provide their own materials. The studio has a hand-operated etching press, acid trays and benches. It is well ventilated with excellent lighting.
The Small Studio
Features
- Studio 3 x 4.2m
- Cleared Open Space Offering Natural Light
- Suitable for a painter, jeweller, writer or small installation artwork.
Clif’s New Studio
Features
- Large Studio 13 x 7m
- Concrete Floor
- High Curved Zincalume Roof
- Excellent Natural Light
- Fluorescent Lighting
- Single Phase Power
- Single and Double Doors
- Suitable for Sculpture and Painting
A very flexible space, this is the largest working studio and has concrete floors, skylights, ceiling fans and gas heating. The studio is currently one large space and one slightly smaller space. It suits a large variety of art forms from metal or stone sculpture to ceramics, painting and performance art. This studio has good access for large works, and has a lovely aspect looking down the hill into the bush.
The Long Gallery
Features
- Long Gallery Space
- Mezzanine Storage
- Side Room Storage
The Long Gallery is an accessible place for resident artists, useful for exhibitions and performances. It is also used for open studios, where artists and residents can showcase their works. It can be rented by non-residents on a casual basis. It has a concrete floor and is a flexible multi-use gallery.













